Классификация машинно тракторных агрегатов

0
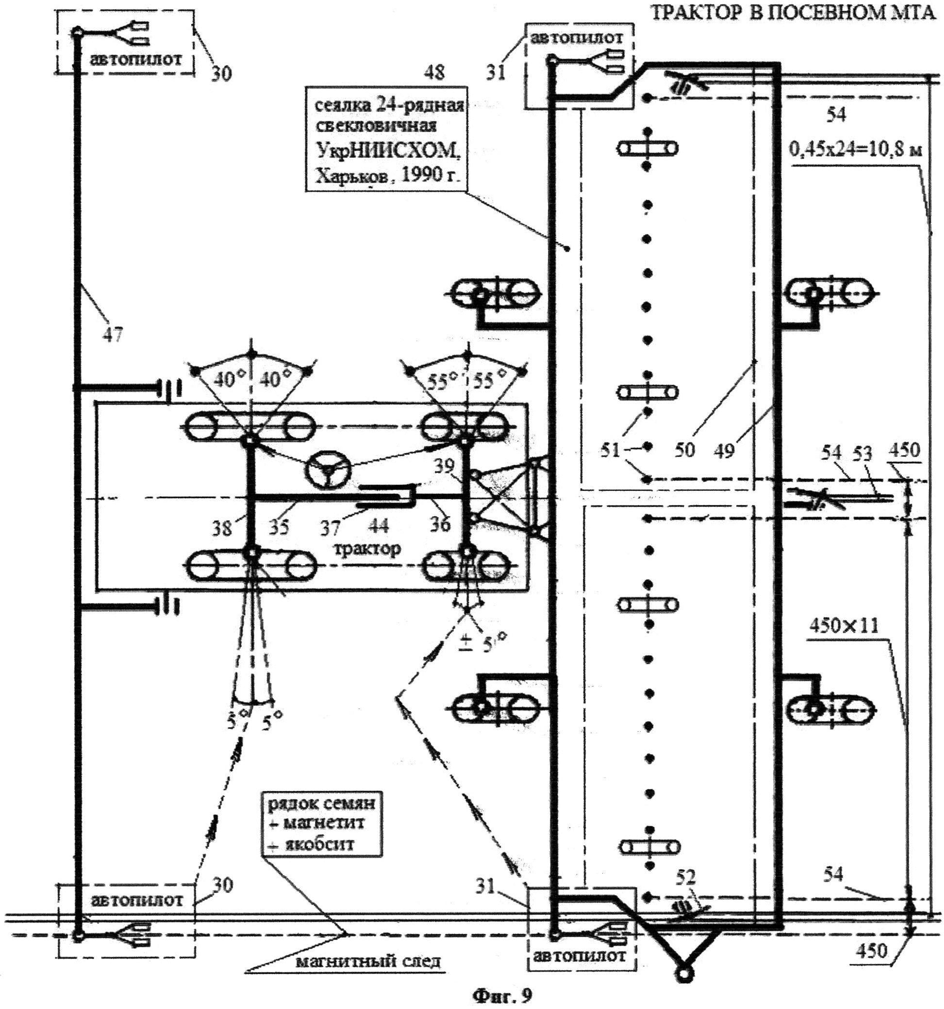
Трактор чертеж
Трактор чертеж
Способы движения машинно-тракторных агрегатов
Способы движения машинно-тракторных агрегатов
Классификация тракторов по тяговому классу схема
Классификация тракторов по тяговому классу схема
Разбрасыватель Минеральных удобрений 1рмг-4 схема
Разбрасыватель Минеральных удобрений 1рмг-4 схема
МТЗ-80 трактор тракторы
МТЗ-80 трактор тракторы
Автогрейдер а-98м2.1
Автогрейдер а-98м2.1
Тяговый класс тракторов таблица
Тяговый класс тракторов таблица
Трактор беларус 82 1
Трактор беларус 82 1
Эксплуатация машинно-тракторного парка

Фотография Эксплуатация машинно-тракторного парка

Тяговые классы тракторов таблица
Тяговые классы тракторов таблица
Тяговые классы тракторов таблица
Тяговые классы тракторов таблица
ХТЗ сварочный агрегат
ХТЗ сварочный агрегат
Сельского хозяйства
Сельского хозяйства
Конструкции трактора Джон Дир
Конструкции трактора Джон Дир
Трактор мтз 80 82
Трактор мтз 80 82
Лемкен 10/600 Рубин 10
Лемкен 10/600 Рубин 10
Производительность машинно-тракторных агрегатов
Производительность машинно-тракторных агрегатов
Производство тракторов в России по годам статистика
Производство тракторов в России по годам статистика
Трансмиссия трактора МТЗ 1221
Трансмиссия трактора МТЗ 1221
Безотвальная вспашка почвы

Фотография Безотвальная вспашка почвы

Операционно-технологическая карта на лущение стерни
Операционно-технологическая карта на лущение стерни
Способы посева
Способы посева
Сеялка культиватор зерновая стерневая СЗС-2,1
Сеялка культиватор зерновая стерневая СЗС-2,1
Тракторный прицеп схема
Тракторный прицеп схема
Комплектование машинно-тракторных агрегатов
Комплектование машинно-тракторных агрегатов
Технологическая карта то-1 трактора МТЗ-82
Технологическая карта то-1 трактора МТЗ-82
Культиватор КПМ-12 Техмаш
Культиватор КПМ-12 Техмаш
Эксплуатация машинно-тракторного парка
Эксплуатация машинно-тракторного парка
Тьюторское сопровождение
Тьюторское сопровождение
Классификация автомобильных ДВС
Классификация автомобильных ДВС
Культиватор КСО-4 чертеж рамы
Культиватор КСО-4 чертеж рамы
Комплектование машинно-тракторных агрегатов
Комплектование машинно-тракторных агрегатов
Farmall super MTA tractors
Farmall super MTA tractors
Операционная технологическая карта вспашки
Операционная технологическая карта вспашки
Культиватор предпосевной навесной для трактора т 150
Культиватор предпосевной навесной для трактора т 150
Чертеж сеялки СУПН-8
Чертеж сеялки СУПН-8
Устройство машинно- тракторного агрегата
Устройство машинно- тракторного агрегата
Габариты трактора ЛТЗ 155
Габариты трактора ЛТЗ 155
Классификация локомотивов
Классификация локомотивов
Технологическая карта комплектование машинно тракторного агрегата
Технологическая карта комплектование машинно тракторного агрегата
Электрифицированные стенды
Электрифицированные стенды
Вспашка ВСВАЛ схема
Вспашка ВСВАЛ схема
Схема трактора гусеничного т 150
Схема трактора гусеничного т 150
Схема смазки трактора МТЗ 80
Схема смазки трактора МТЗ 80
Комплектование машинно-тракторных агрегатов
Комплектование машинно-тракторных агрегатов
Классификация автомобильных ДВС
Классификация автомобильных ДВС
Классификация подъемно-транспортных машин
Классификация подъемно-транспортных машин
Чертеж трактора МТЗ 82 С прицепом
Чертеж трактора МТЗ 82 С прицепом
Чертеж трактора т-150

Фотография Чертеж трактора т-150

Терра групп
Терра групп
Машинно тракторный агрегат
Машинно тракторный агрегат
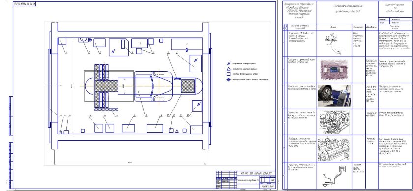
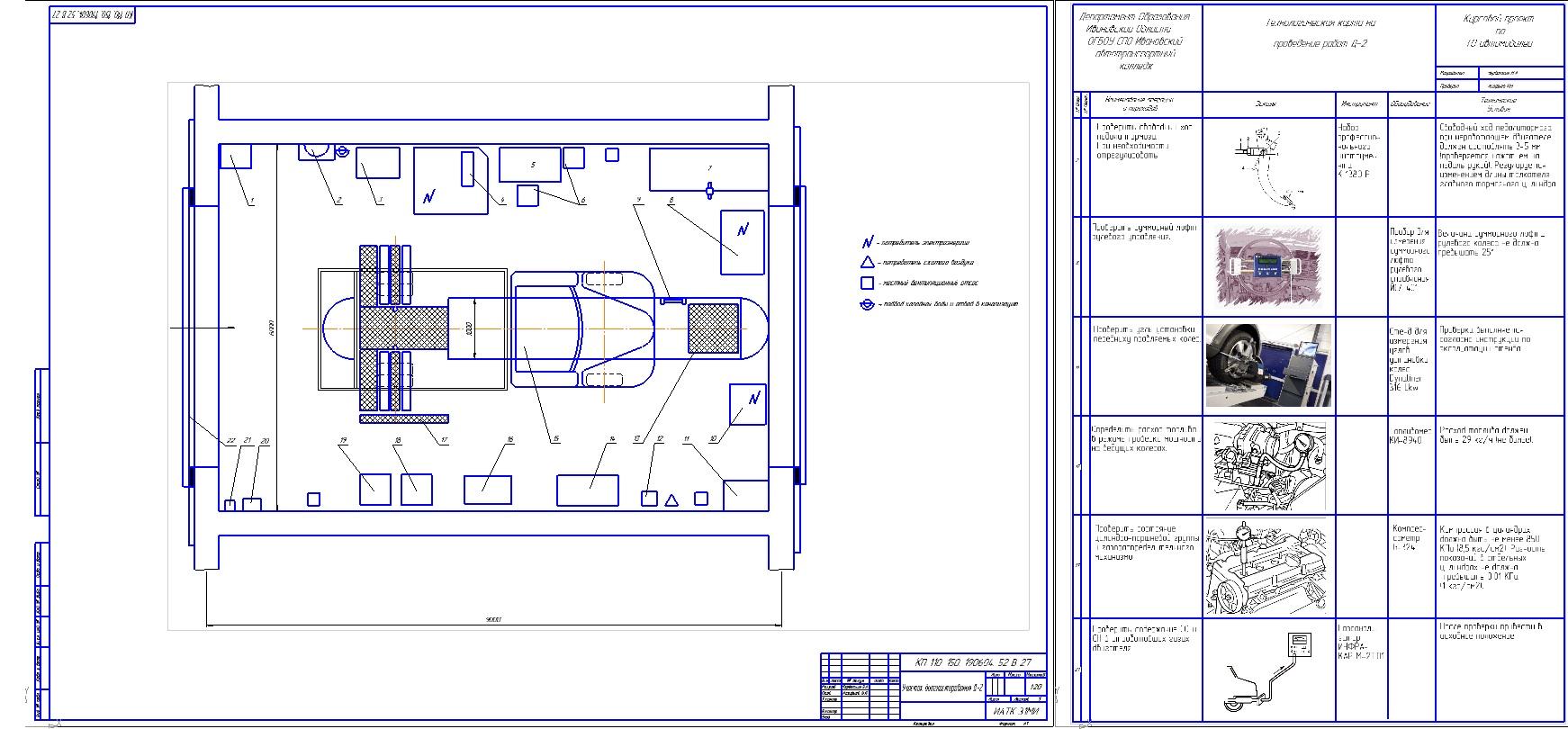
Чертеж диагностического участка АТП
Чертеж диагностического участка АТП
Установка для диагностики тракторов
Установка для диагностики тракторов
Трактор к-700 Кировец ТТХ
Трактор к-700 Кировец ТТХ
Схема классификации рабочих мест
Схема классификации рабочих мест
ДЗ-143 автогрейдер
ДЗ-143 автогрейдер
Классификация устройств для удаления навоза из помещений
Классификация устройств для удаления навоза из помещений
Сеялка зерновая СЗУ-3.6
Сеялка зерновая СЗУ-3.6
Классификация самосвалов
Классификация самосвалов
Сельхозтехника для детей с названиями
Сельхозтехника для детей с названиями
0

Похожие фотографии

Комментарии (0)

Кликните на изображение чтобы обновить код, если он неразборчив